![]() |
| Vitacon Itaim Building |
Architect make efforts to get amazing exterior perspective for his design, in modern architecture technology you can create all of your elevation ideas and put them in one building.That helps in making defernt shapes for the building, it's acceptable for many activites done inside every single unit and you can consider it environmental design by using materials like wood.
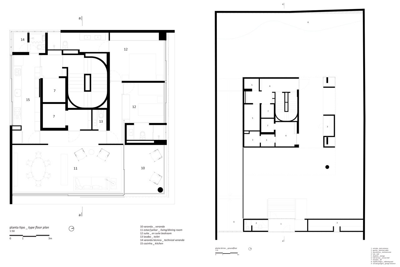
Architects: Studio MK27 – Marcio Kogan + Carolina Castroviejo
Location: State of São Paulo, Brazil
Project Team : Carlos Costa, Fabiana Stucchi, Fernanda Palmieri, Laura Guedes, Mariana Simas, Oswaldo Pessano
![]() |
| Vitacon Itaim Building |
Area: 3305.0 sqm
Year: 2014
The facade is made of reinforced concrete and exposed wood panels, designed to form their own environment and where residents can move according to your needs. In this way, users can optimize their own comfort depending on use and incidence of the sun.
The exposed concrete refers to the brutalist-type buildings of São
Paulo. The material done in the shape of wood has its own life, “a
living organism” as Architect Lina Bo Bardi, the master of Brazilian
modernism said. The texture of the slats – when lit by the sun –
produces a surprising and poetic effect for the larger gables.
![]() |
| Vitacon Itaim Building Section |




Comments
Post a Comment